欢迎访问上海市室内装饰行业协会官网
登录
|
注册
您好
会员中心
退出
请登录
装修咨询热线:400-118-8580
入会、资质申请:400-101-8060
建材商城
合同下载
报价下载
我要投诉
资质申请
公司入会
协会首页
协会介绍
我要装修
会员单位
资质企业
职业资格
培训中心
行业信息
诚信建设
星级企业
装修监理
问吧
重要条文:
装饰企业资质申请,设计师、项目经理、监理师、预算师资格认证咨询热线:400-101-8060
您的位置:
会员单位
>
装修公司
>
上海石澜装饰设计有限公司-案例展示
上海石澜装饰设计有限公司
协会编号:
SZ—1352
入会日期:
2015-03-26
咨询热线:
15026515282
地址:
中山西路2368号华鼎大厦12楼D座
声明:提醒广大业主预约时看清协会编号入会时间公司名称让装修有保障
效果图
企业简介
公司团队
荣誉证书
工地监理
预约装修
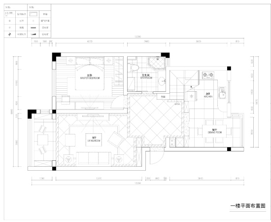
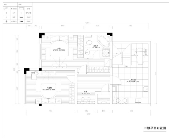
简欧风情-复式
平面图
平面图
卧室
客厅
给该公司留言
0
/
6000
字节
留言读取中...
Copyright © 上海市室内装饰行业协会
沪ICP备10009510号
装修咨询热线:400-118-8580
入会、资质申请:400-101-8060
邮箱:shzh@shzh.net